Edificio CONSTITUCIÓN 98, en Onil (Alicante)

Avenida de la Constitución nº98, con fachadas a Calle Matrimonio Mira García y Calle Cardenal Payá


Planos de viviendas

BAJO A, orientado a C/ Cardenal Payá

2 Dormitorios, 2 Baños, Patio

BAJO I, orientado a C/ Cardenal Payá y Matrimonio Mira

3 Dormitorios, 2 Baños

BAJO B, orientado a C/ Cardenal Payá

3 Dormitorios, 2 Baños, Patio

BAJO J, orientado a C/ Cardenal Payá

2 Dormitorios, 2 Baños, Patio

BAJO C, orientado a C/ Matrimonio Mira García

3 Dormitorios, 2 Baños, Patio

ENTRESUELO A, orientado a C/ Cardenal Payá

2 Dormitorios, 2 Baños

ENTRESUELO B, orientado a C/ Cardenal Payá

3 Dormitorios, 2 Baños

ENTRESUELO C, acceso directo desde Avda. Constitución

2 Dormitorios, 2 Baños

ENTRESUELO D, acceso directo desde Avda. Constitución

1 Dormitorio, 1 Baño

ENTRESUELO F, acceso directo desde Avda. Constitución

3 Dormitorios, 2 Baños

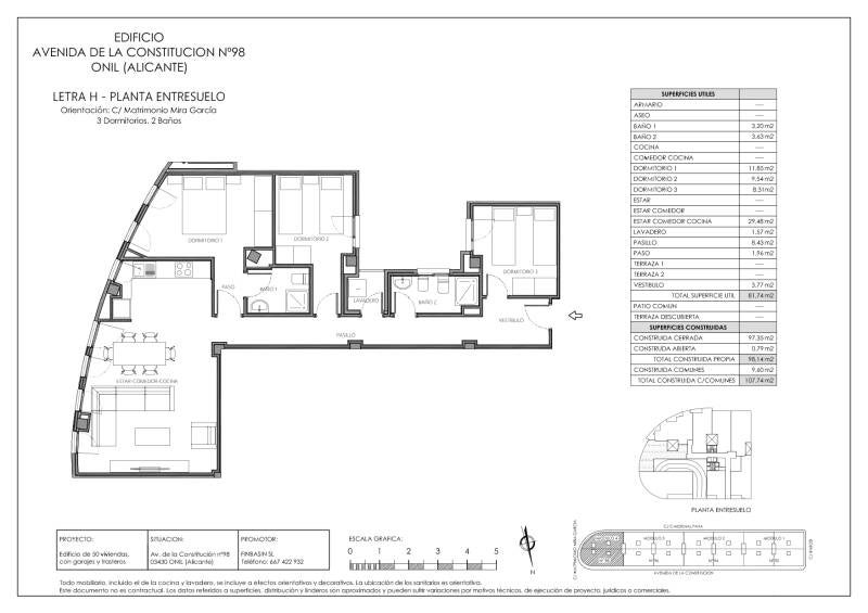
ENTRESUELO H, orientado a C/ Matrimonio Mira García

3 Dormitorios, 2 Baños

ENTRESUELO I, orientado a C/ C.Payá y Matrimonio Mira

3 Dormitorios, 2 Baños, 2 Terrazas

ES, 01, 02 y 03 J, orientado a C/ Cardenal Payá

2 Dormitorios, 2 Baños, 1 Terraza

01, 02 y 03 A, orientado a C/ Cardenal Payá

2 Dormitorios, 2 Baños, 1 Terraza

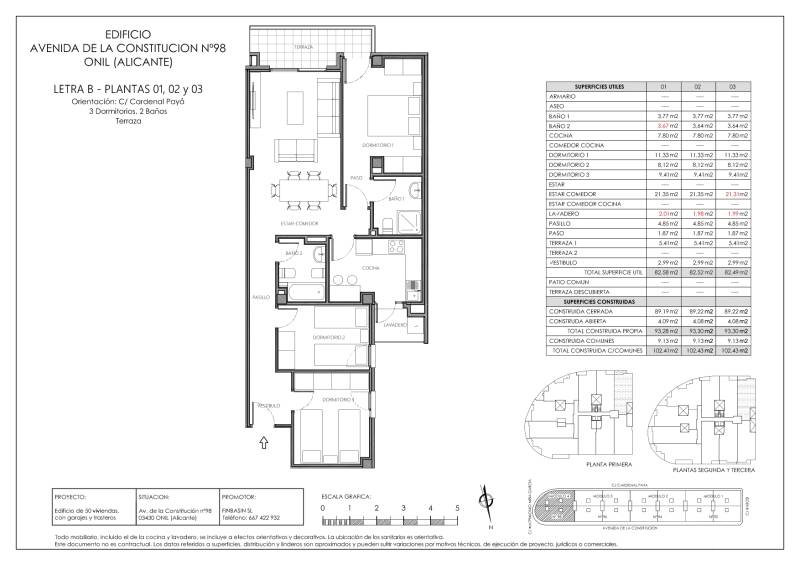
01, 02 y 03 B, orientado a C/ Cardenal Payá

3 Dormitorios, 2 Baños, 1 Terraza

01 C, orientado a Avda. Constitución

3 Dormitorios, 2 Baños, Patio

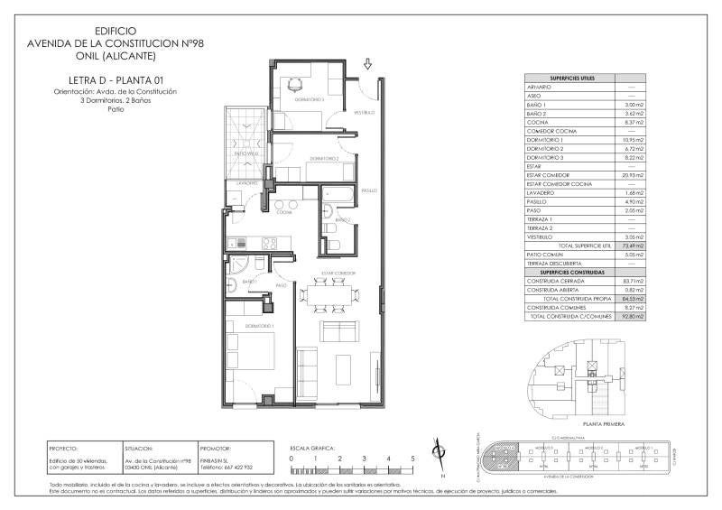
01 D, orientado a Avda. Constitución

3 Dormitorios, 2 Baños, Patio

01 E, orientado a Avda. Constitución

3 Dormitorios, 2 Baños, Patio

01 F, orientado a Avda. Constitución y Matrimonio Mira

3 Dormitorios, 2 Baños, 2 Terrazas

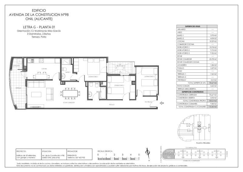
01 G, orientado a C/ Matrimonio Mira García

3 Dormitorios, 2 Baños, 1 Terraza, Patio

01 H, orientado a C/ Matrimonio Mira García

3 Dormitorios, 2 Baños, 1 Terraza, Patio

01, 02 y 03 I, orientado a C/ Cardenal Payá y M. Mira

3 Dormitorios, 2 Baños, 2 Terrazas

02 y 03 C, orientado a Avda. Constitución

3 Dormitorios, 2 Baños, 1 Terraza

02 y 03 D, orientado a Avda. Constitución

3 Dormitorios, 2 Baños, 1 Terraza

02 y 03 E, orientado a Av. Constitución

3 Dormitorios, 2 Baños, 1 Terraza

02 y 03 F, orientado a Av. Constitución y M. Mira Gª

3 Dormitorios, 2 Baños, 2 Terrazas

02 y 03 G, orientado a C/ Matrimonio Mira García

3 Dormitorios, 2 Baños, 1 Terraza

02 y 03 H, orientado a C/ Matrimonio Mira García

3 Dormitorios, 2 Baños, 1 Terraza

04 A/ÁTICO orientado a C/ Cardenal Payá

3 Dormitorios, 2 Baños, Terraza

04 B orientado a Av. Constitución

2 Dormitorios, 2 Baños, 1 Terraza

04 C orientado a Av. Constitución

1 Dormitorio, 1 Baño, 1 Terraza

04 D, orientado a Av. Constitución y M. Mira Gª

3 Dormitorios, 2 Baños, 2 Terrazas

04 E / ATICO, orientado a Cardenal Payá y M. Mira Gª

3 Dormitorios, 2 Baños, Terraza

04 F / ÁTICO, orientado a C/ Cardenal Payá

2 Dormitorios, 1 Baño+ 1 Aseo, Terraza

04 G / ÁTICO, orientado a C/ Cardenal Payá

3 Dormitorios, 2 Baños, Terraza